5日で学ぶJw_cad
5日で学ぶJw_cad4 手塚貴晴+手塚由比の「屋根の家」をかく −絶版-

手塚貴晴・手塚由比両氏の代表作のひとつで、数多くの賞を受けた「屋根の家」を教材としたJw_cad入門書です。
Jw_cadをこれから始める方を対象に、5日間でJw_cadの基本操作の学習から、「屋根の家」の平面図、屋根平面図、断面図、立面図、配置図の作図までを行います。
同梱されているJw_cadはver4.05aですが、最新版のJw_cadでもご利用いただけます。

\3,000+税  ObraClub著
Jw_cad ver4.05a同梱
        

BEFORE THE LESSON


Jw_cadのインストール・起動・設定

1日目 基本操作と印刷

基本操作の学習と印刷を行います。

LESSON1 コマンド選択、線・円の作図と消去LESSON2 寸法の決まった図の作図と保存
LESSON3 円・円弧の作図、消去と印刷

2日目 基本操作と屋根の家の作図準備

引き続き、基本操作の学習と「屋根の家」の作図準備をします。

LESSON1 平面図の作図
LESSON2 天窓と階段の作図
LESSON3 レイヤの基本操作と包絡処理
LESSON4 平面図作図の準備

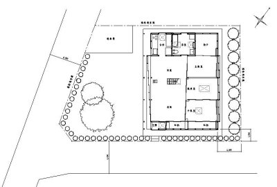
3日目 屋根の家 平面図

屋根の家の平面図を作図します。また、4日目の屋根平面図と断面図で利用するための天窓と階段を作図し、図形登録します。

LESSON1 屋根の家 平面図
LESSON2 図形登録

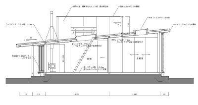
4日目 屋根の家 屋根平面図・断面図

屋根の家の屋根平面図と断面図を作図します。

LESSON1 屋根の家 屋根平面図
LESSON2 屋根の家 断面図

5日目 屋根の家 立面図・配置図

屋根の家の立面図と配置図を作図します。

LESSON1 屋根の家 立面図
LESSON2 屋根の家 配置図

http://www.obraclub.com/